Τέσσερις μεγάλες κατασκευαστικές κατέθεσαν προσφορές
Τέσσερις από τις μεγαλύτερες ελληνικές κατασκευαστικές εταιρείες κατέθεσαν χθες φακέλους προσφορών για το έργο της σήραγγας της Κλεισούρας. Τις επόμενες ημέρες η αναθέτουσα αρχή, που είναι η Εγνατία Α.Ε., θα προχωρήσει σε αποσφράγιση των προσφορών και θα ανακοινώσει τον προσωρινό μειοδότη.
Κι ενώ ο κυβερνητικός βουλευτής Ζήσης Τζηκαλάγιας, που ανακοίνωσε και τα νέα, είναι ενθουσιασμένος, τον ενθουσιασμό του δεν φαίνεται να συμμερίζεται ο κατασκευαστικός κόσμος που θέτει σοβαρούς προβληματισμούς σχετικά με την εξέλιξη του έργου.
Κι αυτό γιατί έχουν αλλάξει δραματικά οι τιμές το τελευταίο χρονικό διάστημα, λόγω της τρέχουσας συγκυρίας. Έτσι, ενώ η αρχική τιμή εκσκαφής ανά κυβικό πριν την έκπτωση, ήταν -κατά την κατάρτιση των τευχών δημοπράτησης- 2,5 ευρώ, τώρα η τρέχουσα τιμή είναι 7 με 7,5 το κυβικό για όλους τους τύπους των τιμολογίων
Πρόκειται δηλαδή για μια διαφορά τιμολογίου μπορεί να φτάσει και το 300%, κάνοντας ιδιαίτερα επισφαλή τη συνέχεια. Μάλιστα, πηγές του κατασκευαστικού χώρου λένε ότι οι μεγάλες αυξήσεις στην αγορά θα καταδικάσουν τη δημοπράτηση να αποβεί άκαρπη και να γίνει εκ νέου δημοπράτηση.
Το κόστος του έργου με ΦΠΑ έχει εκτιμηθεί στα 71,07 εκ., ενώ η διάρκειά του έχει οριστεί σε 36 μήνες από την ημέρα υπογραφής της σύμβασης. Αν τα έργα ξεκινήσουν φέτος, τότε η εργολαβία θα μπορέσει να ολοκληρωθεί στα τέλη του 2025. Εκφράζονται, ωστόσο, φόβοι ότι το αισιόδοξο σενάριο που θέλει το έργο να ξεκινά μετά το καλοκαίρι, δεν θα επαληθευτεί.
Η ταυτότητα του έργου
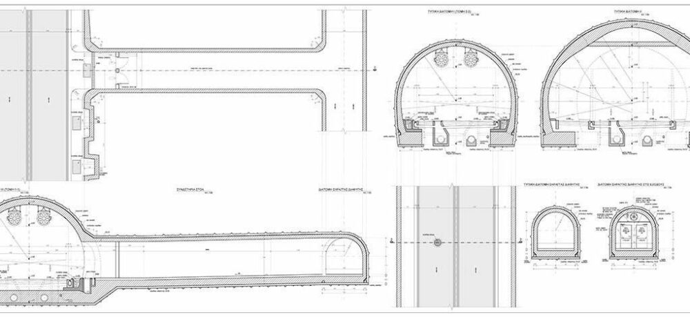
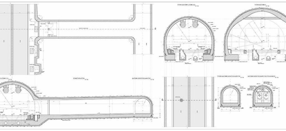
Αντικείμενο του έργου αποτελεί η πλήρης κατασκευή της αρτηρίας της νέας επαρχιακής Οδού, που εντάσσεται στον οδικό άξονα Καστοριάς – Πτολεμαΐδας και βρίσκεται στα διοικητικά όρια των Περιφερειακών Ενοτήτων Καστοριάς και Φλώρινας και απολήγει στα όρια του νομού Κοζάνης.
Η αρτηρία έχει μήκος 10,40 χλμ. Περίπου και συνολικό πλάτος ασφαλτοστρωμένου οδοστρώματος 8,0μ., περιλαμβάνοντας, μία λωρίδα κυκλοφορίας πλάτους 3,75μ ανά κατεύθυνση και επιπλέον λωρίδα καθοδήγησης πλάτους 0,25μ. Στο πλαίσια κατασκευής της αρτηρίας προβλέπεται και η κατασκευή:
- τεσσάρων ισόπεδων κόμβων:
- της σήραγγας Κλεισούρας, διπλής κατεύθυνσης μήκους 1.365μ, με σήραγγα διαφυγής 1.383μ., σε ιδιαίτερα ορεινό ανάγλυφο
- μίας γέφυρας (ρέματος Κώτουρη), μήκους 34,60μ περίπου,
- τεσσάρων κάτω διαβάσεων
- δυο κτιρίων στα μέτωπα της σήραγγας, καθώς και η πλήρης αποκατάσταση των συνδέσεων υφιστάμενου τοπικού οδικού δικτύου.
Δήμοι: Διακόπτονται σημαντικά έργα λόγω κόστους υλικών
Διακόπτονται σημαντικά έργα στους δήμους λόγω των ανατιμήσεων στα υλικά, επισημαίνει η Κεντρική Ένωση Δήμων Ελλάδας (ΚΕΔΕ).
Ο πρόεδρος της ΚΕΔΕ Δημήτρης Παπαστεργίου, με επιστολή του στον υπουργό Υποδομών και Μεταφορών Κώστα Καραμανλή, επισημαίνει τις επιπτώσεις που έχει στην ομαλή υλοποίηση των έργων υποδομών που εκτελούνται ή πρόκειται να εκτελεστούν στο επόμενο διάστημα, η εκτίναξη του κόστους κατασκευής τους.
«Χαρακτηριστικά αναφέρει», σημειώνεται σε σχετική ανακοίνωση της ΚΕΔΕ, «ότι σήμερα έχουν σταματήσει να υλοποιούνται πολλά έργα ύδρευσης και αποχέτευσης με εξασφαλισμένη χρηματοδότηση από το Πρόγραμμα Φιλόδημος, εξαιτίας της μεγάλης αύξησης στις τιμές των σωληνώσεων PVC, που ξεπερνά το 100%.
Αντίστοιχο πρόβλημα δημιουργείται στην υλοποίηση έργων που αφορούν νέες κτιριακές υποδομές και μεταλλικά κτίρια, λόγω της αύξησης των τιμών χάλυβα -οικοδομικού σιδήρου άνω του 100%.
Στα δε έργα ασφαλτόστρωσης, όπου το κόστος της ασφάλτου έχει αυξηθεί κατά 200%, το πρόβλημα είναι ακόμη μεγαλύτερο».
Έκκληση του προέδρου της ΚΕΔΕ για αναθεωρήσεις τιμών
Ο κ. Παπαστεργίου καλεί το υπουργείο Υποδομών «να προχωρήσει άμεσα στην έκδοση απόφασης, που θα προβλέπει νέες, ρεαλιστικές αναθεωρήσεις τιμών, για όλες τις εργασίες που αφορούν την εκτέλεση δημόσιων έργων.
Επίσης, προς την κατεύθυνση αυτή είναι αναγκαίο να ληφθεί μέριμνα ώστε το αναθεωρημένο προς τα πάνω κόστος, να καλυφθεί από τα προγράμματα που χρηματοδοτούν τα έργα των Δήμων μας».
Επίσης ζητά «να υπάρξει και νομοθετική ρύθμιση για παράταση των προθεσμιών όλων των συμβάσεων δημόσιων έργων».
Σωκράτης Μουτίδης www.xronos-kozanis.gr











